أقوي و أسرع شوب دروينج للبلاطات
Professional Shop drawing for Slabs
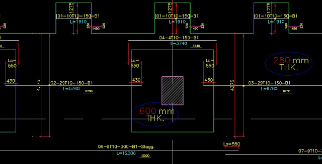
الفديو يشرح كيفية عمل Shop
Drawing لبلاطة Flat Slab بطريقة
أحترافية فاللوحة من واقع عمل خاص مع مكتب أستشاري
كبير و ذلك بأستخدام برنامج مخصص لغرض عمل اللوحة بالأضافة لعمل Template + حصر كمية الحديد المستخدمة و ذلك :
كبير و ذلك بأستخدام برنامج مخصص لغرض عمل اللوحة بالأضافة لعمل Template + حصر كمية الحديد المستخدمة و ذلك :
* بأقصي توفير للحديد
* بأسرع ما يمكن
* و تقليل الأخطاء لأقصي حد
* بأسرع ما يمكن
* و تقليل الأخطاء لأقصي حد
سيساعدك كثيرا في أنجاز جميع لوحات Shop drawing لمختلف
العناصر الانشائية بسرعة فائقة و بدون اخطاء يمكنك سماع الحلقة المجانية و الحكم
راجع لك :
و لو عجبك طريقة الشرح و تحب تاخد معايا كورس Shop Drawing
من
البداية للنهاية بتوسع أعمق فأنا حاليا بحاضر في أكبر مكاتب الكورسات بالجيزة
للتواصل للأستفسارعن طريق الرسائل بصفحتنا أو من خلال الأيميل
للمزيد يمكنك الأطلاع علي هذا الموضوع :
للتواصل للأستفسارعن طريق الرسائل بصفحتنا أو من خلال الأيميل
hanywillim@yahoo.com
ويمكنك شراء محاضرات كورس الشوب دروينج الأونلاين كاملة كما هو موضح بالأستمارة الموجودة بموضوع الكورس المدفوع
طرق الدفع من داخل مصر : فودافون كاش
من خارج مصر : حوالة علي بنك ويسترن يونيون
لمتابعة كل المواضيع الجديدة
تابع صفحتنا بالفيس بوك
طرق الدفع من داخل مصر : فودافون كاش
من خارج مصر : حوالة علي بنك ويسترن يونيون
لمتابعة كل المواضيع الجديدة
تابع صفحتنا بالفيس بوك
قد بذلنا
الجهد و التعب لجمع هذه المعلومات التي أعطيناها لك ,
فلا تبخل علينا
بالأشتراك تشجيعا لنا للأستكمال و ليصلك كل جديد
لينك
القناة علي اليوتيوب :
لينك صفحة
الهندسة حياة علي الفيس بوك :
لينك جروب
الهندسة حياة علي الفيس بوك :
أشكرك كثيرا علي قرائتك
للمقالة , أتمني أن تشاركها , بالتأكيد هناك من سيستفيد منها
لينك مشاهدة حلقة Shop drawing for Beams :
لينك مشاهدة حلقة توفيق قطعيات الحديد :
لينك مشاهدة حلقة الطباعة بمقياس رسم علي الأتوكاد:



تعليقات: 0
إرسال تعليق